128X64带中文字库的液晶模块应用与程序 -
[导读]
一) 概述 …………………………………………………… 3(二) 外形尺寸1 方框图 ……………………………………………… 32 外型尺寸图 ………………………………………… 4(三) 模块的接口 ………………
一) 概述 …………………………………………………… 3
本文引用地址: http://www.21ic.com/app/mcu/201806/761753.htm
(二) 外形尺寸
1 方框图 ……………………………………………… 3
2 外型尺寸图 ………………………………………… 4
(三) 模块的接口 …………………………………………… 4
(四) 硬件说明 ……………………………………………… 5
(五) 指令说明 ……………………………………………… 7
(五) 读写操作时序 ………………………………………… 8
(六) 交流参数 ……………………………………………… 11
(七) 软件初始化过程 ……………………………………… 12
(八) 应用举例 ……………………………………………… 13
(九) 附录
1半宽字符表 ………………………………………… 20
2 汉字字符表 ………………………………………… 21
一、概述
带中文字库的128X64是一种 具有 4 位 /8 位并行、 2 线或 3 线串行多种接口方式,内部含有国标一级、二级简体中文字库的点阵图形液晶显示模块; 其显示分辨率为 128×64, 内置8192个16*16点汉字,和128个16*8点ASCII字符集. 利用该模块灵活的接口方式和简单、方便的操作指令,可构成全中文人机交互图形界面。 可以显示 8×4行16×16点阵的汉字. 也可完成图形显示.低电压低功耗是其又一显著特点。由该模块构成的液晶显示方案与同类型的图形点阵液晶显示模块相比,不论硬件电路结构或显示程序都要简洁得多,且该模块的价格也略低于相同点阵的图形液晶模块。
基本特性 :
l 低电源电压( VDD:+3.0--+5.5V)
l 显示分辨率 :128×64点
l 内置汉字字库,提供 8192个16×16点阵汉字(简繁体可选)
l 内置 128个16×8点阵字符
l 2MHz时钟频率
l 显示方式: STN、半透、正显
l 驱动方式: 1/32DUTY,1/5BIAS
l 视角方向: 6点
l 背光方式:侧部高亮白色LED,功耗仅为普通LED的1/5—1/10
l 通讯方式:串行、并口可选
l 内置 DC-DC转换电路,无需外加负压
l 无需片选信号,简化软件设计
l 工作温度 : 0℃ - +55℃ ,存储温度: -20℃ - +60℃
二、方框图

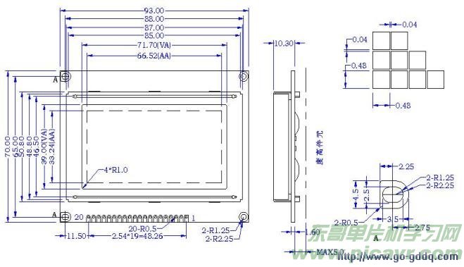
3、外形尺寸图

三、模块接口说明

*注释1:如在实际应用中仅使用串口通讯模式,可将PSB接固定低电平,也可以将模块上的J8和“GND”用焊锡短接。
*注释2:模块内部接有上电复位电路,因此在不需要经常复位的场合可将该端悬空。
*注释3:如背光和模块共用一个电源,可以将模块上的JA、JK用焊锡短接。
2.2并行接口
*注释1:如在实际应用中仅使用并口通讯模式,可将PSB接固定高电平,也可以将模块上的J8和“VCC”用焊锡短接。
*注释2:模块内部接有上电复位电路,因此在不需要经常复位的场合可将该端悬空。
*注释3:如背光和模块共用一个电源,可以将模块上的JA、JK用焊锡短接。
四 .模块主要硬件构成说明
控制器接口信号说明:
1、RS,R/W的配合选择决定控制界面的4种模式:
2、E信号
● 忙标志 :BF BF标志提供内部工作情况.BF=1表示模块在进行内部操作,此时模块不接受外部指令和数据.BF=0时,模块为准备状态,随时可接受外部指令和数据. 利用STATUS RD 指令,可以将BF读到DB7总线,从而检验模块之工作状态.● 字型产生 ROM(CGROM) 字型产生ROM(CGROM)提供8192个此触发器是用于模块屏幕显示开和关的控制。DFF=1为开显示(DISPLAY ON),DDRAM 的内容就显示在屏幕上,DFF=0为关显示(DISPLAY OFF)。 DFF 的状态是指令DISPLAY ON/OFF和RST信号控制的。● 显示数据RAM(DDRAM)模块内部显示数据 RAM提供64×2个位元组的空间,最多可控制4行16字(64个字)的中文字型显示,当写入显示数据RAM时,可分别显示CGROM与CGRAM的字型;此模块可显示三种字型,分别是半角英数字型(16*8)、CGRAM字型及CGROM的中文字型,三种字型的选择,由在DDRAM中写入的编码选择,在0000H—0006H的编码中(其代码分别是0000、0002、0004、0006共4个)将选择CGRAM的自定义字型,02H—7FH的编码中将选择半角英数字的字型,至于A1以上的编码将自动的结合下一个位元组,组成两个位元组的编码形成中文字型的编码BIG5(A140—D75F),GB(A1A0-F7FFH)。●字型产生 RAM(CGRAM) 字型产生RAM提供图象定义(造字)功能, 可以提供四组16×16点的自定义图象空间,使用者可以将内部字型没有提供的图象字型自行定义到CGRAM中,便可和CGROM中的定义一样地通过DDRAM显示在屏幕中。● 地址计数器 AC地址计数器是用来贮存 DDRAM/CGRAM之一的地址,它可由设定指令暂存器来改变,之后只要读取或是写入DDRAM/CGRAM的值时,地址计数器的值就会自动加一,当RS为“0”时而R/W为“1”时,地址计数器的值会被读取到DB6——DB0中。
● 光标 /闪烁控制电路
此模块提供硬体光标及闪烁控制电路,由地址计数器的值来指定 DDRAM中的光标或闪烁位置。
五、指令说明
模块控制芯片提供两套控制命令,基本指令和扩充指令如下:
指令表 1:(RE=0:基本指令)
查看评论 回复









